selekou.katerina architecture practice







Renovation of a 70 sqm apartment in a 1970’s building in Lycabettus 

photos by Dimitra Chrysoula



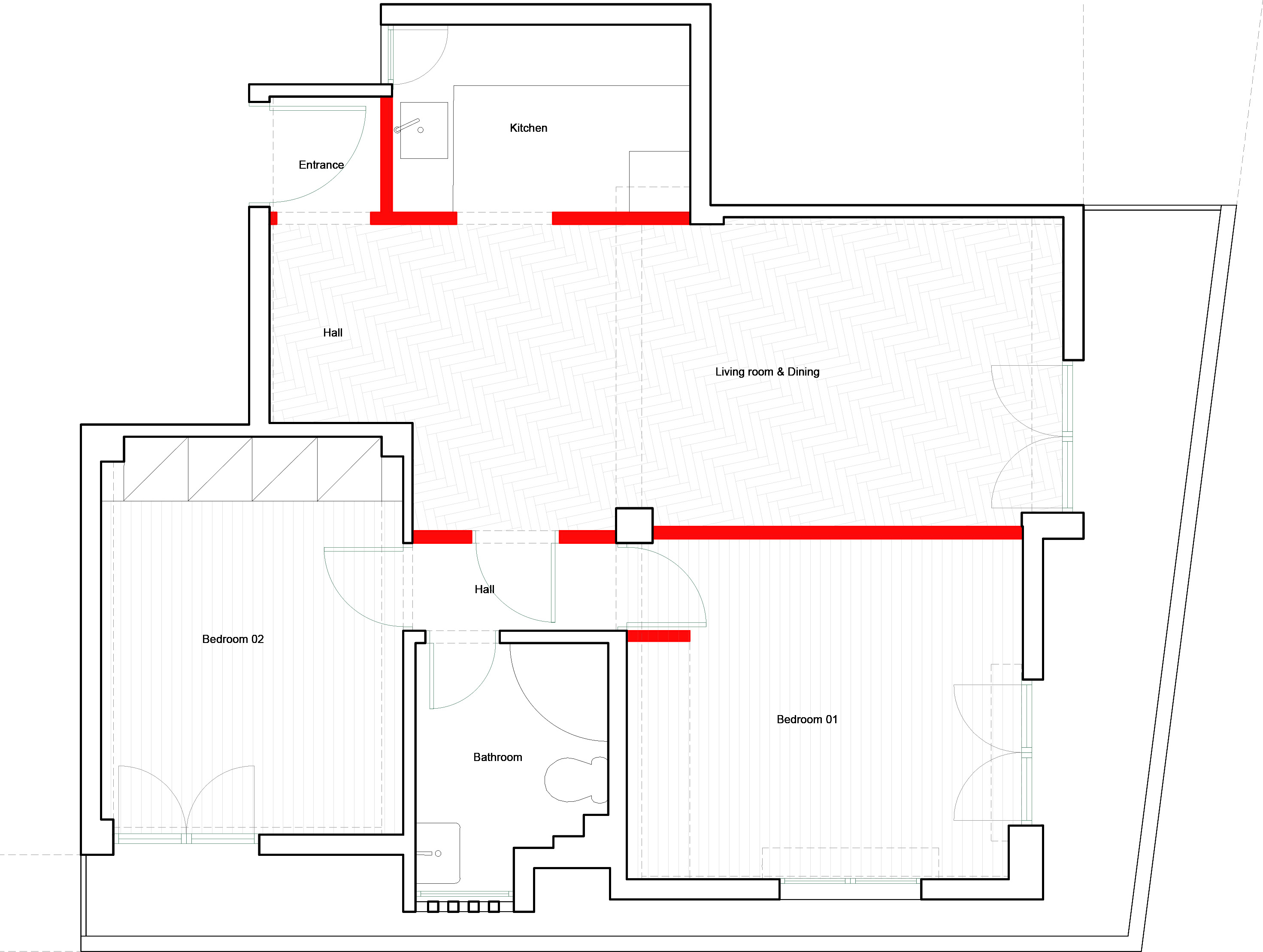
This work is about the renovation of a  70 sqm second floor apartment in the Lycabettus area, at the city center of Athens.
The owner wanted to merge the south and bright bedroom with the living room, while ensuring that this space could be isolated when hosting guests. She also desired to preserve the apartment’s 70s features (wooden parquet and skirting boards, woodenshutters, Dionysos marble, terrazzo floor in balconies) and frame them with more vibrant choices.

We suggested an open-plan layout  with the aim of allowing as much natural light as possible into the space. To organize the unified space, we emphasized on the transitional areas  by choosing vibrant colors and textures, treated the kitchen as another piece of furniture, and designed metal partitions/doors to serve different living scenarios.