selekou.katerina architecture practice








Renovation of a 135 m² apartment in a 1972 apartment complex in Chalandri

photos by Dimitra Chrysoula

construction by Andreas Kolovos

       


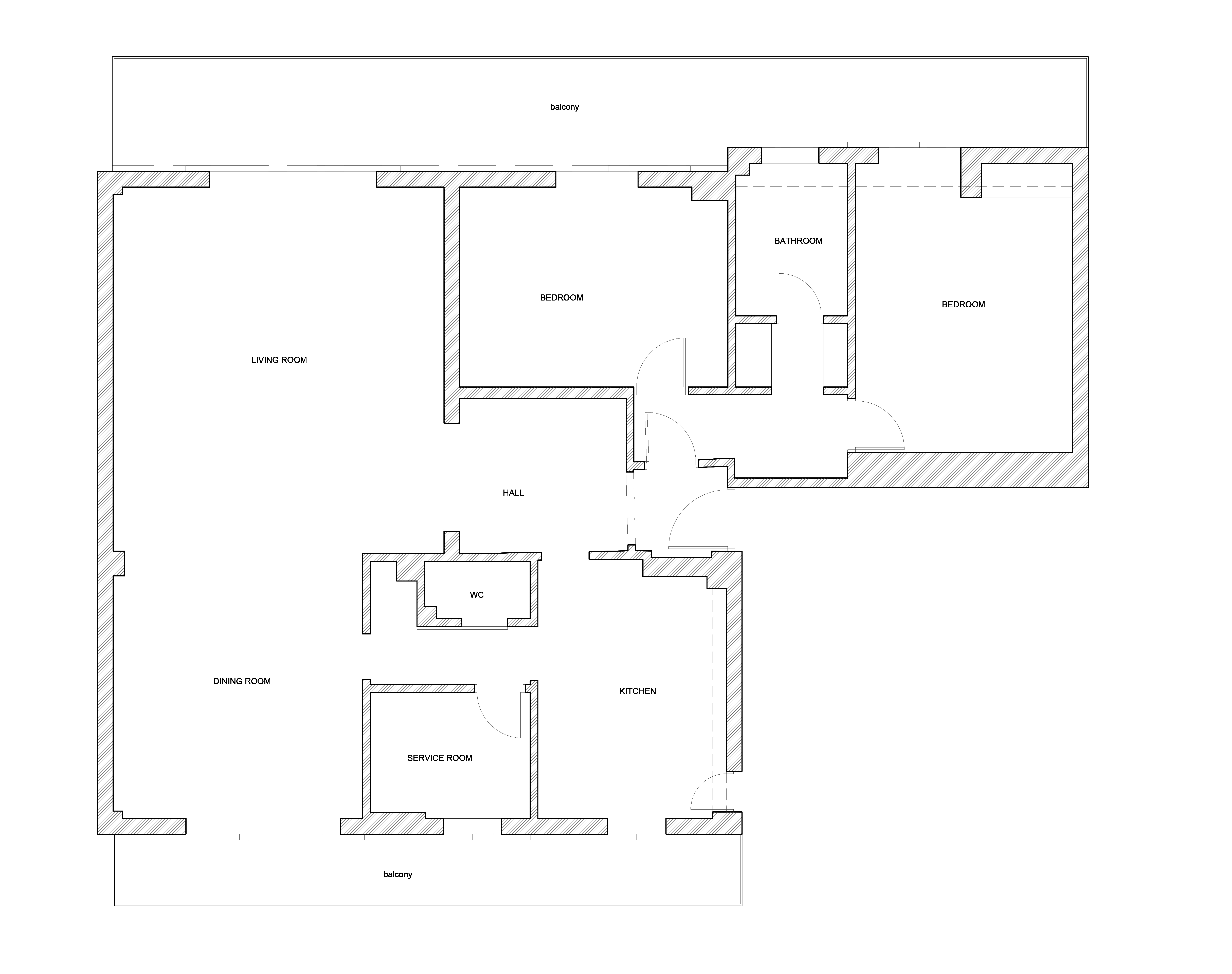
The apartment is located in an apartment complex in Chalandri. The complex consists of two identical apartment buildings with a single multi-purpose common area on the ground floor, designed by architect Ioannis Vikelas (1972).

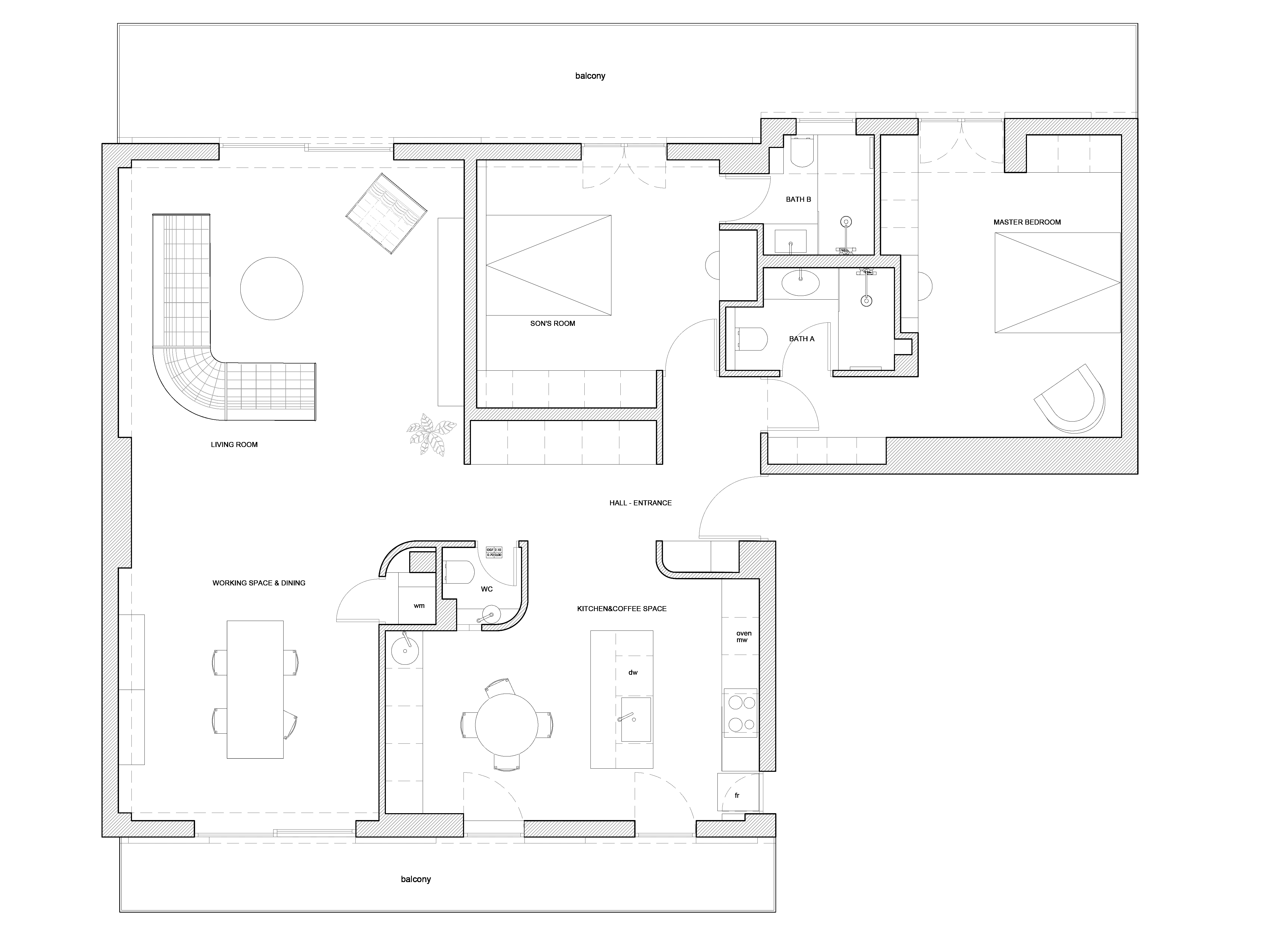
In order to meet the modern needs of the owners, it was necessary to remove the interior walls and replace them with new partitions. However, the design principle was to preserve the original basic layout. The  basic layout consists of a hall that connects the entrance with the living room and dining room. The rest of the residence is located on either side of the hall. The bedrooms and bathroom face north, while the kitchen, WC, and utility room are located on the south side of the apartment. 

The existing hallway is narrowed, converted into a corridor, and the extra space is used to create storage areas (wardrobes), built-in furniture with seating at the entrance, and a WC. On the kitchen side, where there used to be a service room, it is removed, and the kitchen space is enlarged to create a coffee area and table. The bedroom side is also redesigned so that each bedroom has its own bathroom, built-in wardrobes, and desk or dressing table.

A major advantage of the apartment is its airiness, which is evident in the living room-dining room area. It is a bright and open space on both sides of the building (north and south) with a balcony on each side. The kitchen, bathed in southern light, is a pleasant space and is the first room you see when you enter, as it opens onto the hallway. On the other hand, a small hall separates the bedrooms from the common areas for more privacy.  

The owners desired a calm and minimalist aesthetic. For this reason, built-in wardrobes, hidden doors, and woodwork in the same off-white shade as the walls were designed. Oak wood was used in furniture and details that we wanted to emphasize, such as the kitchen island and coffee bar, the entrance furniture, the entrance door, etc. The flooring throughout the apartment, except for the bathrooms, was covered with light oak laminate. In the kitchen, a distinctive beige quartz was chosen to complement the earthy palette. The master bedroom followed this color palette, complemented by travertine-look tiles in the bathroom, while the second bedroom was differentiated with a bold blue element in both the woodwork and the bathroom. Glass bricks were used in the bathrooms and WC to illuminate these intermediate spaces where there were no windows.
Finally, curved walls were designed instead of straight line walls for a softer aesthetic effect.